Machbarkeitsstudie MFH Wolfenschiessen Nidwalden

Bauherrschaft Privat
Baujahr 2024
Leistung Entwurf
3D-Rendering
Bauherrschaft Privat
Baujahr 2024
Leistung Entwurf
3D-Rendering

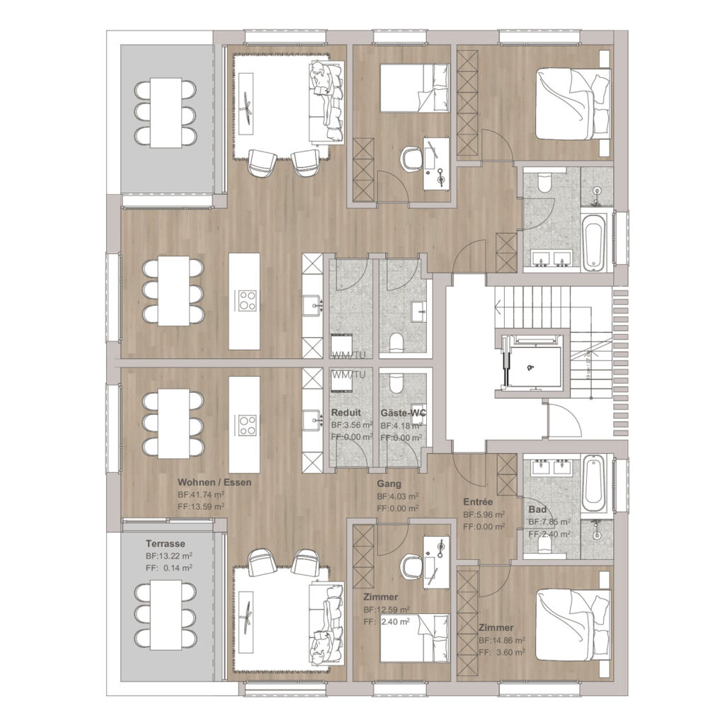
Es wurden sorgfältige Untersuchungen durchgeführt, um die Machbarkeit der Grundrisse und Rentabilität für ein Renditeprojekt zu bewerten. Als Teil dieses Prozesses wurde ein Vergleichsprojekt analysiert, um potenzielle Wege zur Optimierung aufzuzeigen.

Grundriss Wohnung eines Mehrfamilienhauses in Wolfenschiessen, Nidwalden
Grundriss Wohnung eines Mehrfamilienhauses in Wolfenschiessen, Nidwalden
Visualisierung eines Mehrfamilienhauses in Wolfenschiessen, Nidwalden